|
|
【建築工程製圖王】 |
|
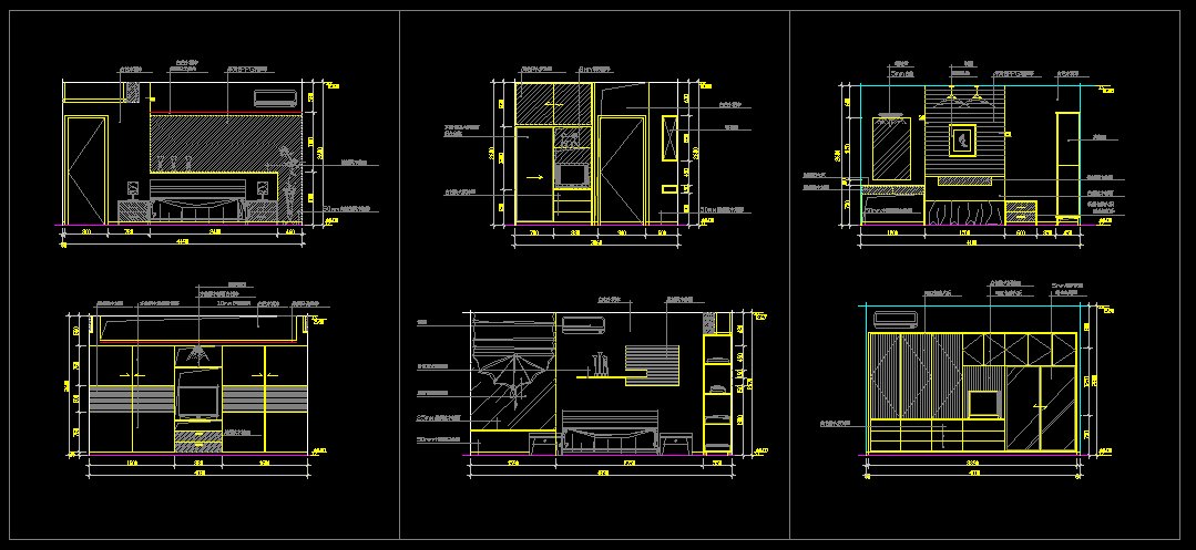
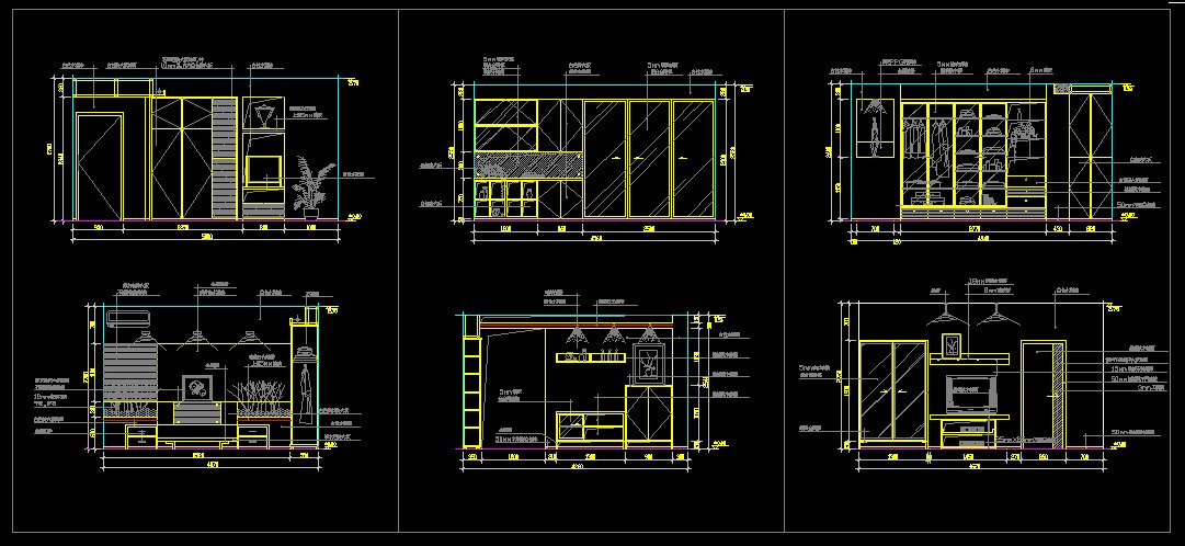
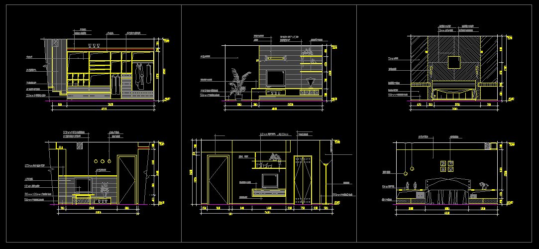
★主臥室設計Autocad模板 臥房配置 日式和室 主臥房設計 客房 商業主臥房配置 |
![]() ★主臥室設計Autocad模板 臥房配置 日式和室 主臥房設計 客房 商業主臥房配置
|
|
|
|
★建築圖庫 | AutoCAD室內設計圖庫 | 台灣建築 |建築公會標準圖庫│建築系 建築技術規則│建築世界 建築結構 ★t- |
|
|
|
【建築工程AutoCAD製圖王】專業AutoCAD建築工程 AutoCAD施工圖庫 AutoCAD圖塊 AutoCAD剖立面圖 Copyright@All Rights Reserved |