|
|
【建築工程製圖王】 |
|
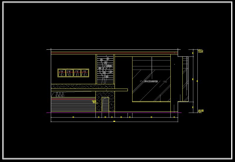
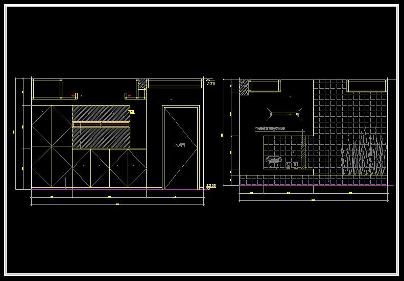
★豪宅餐廳設計Autocad模板 餐廳設計圖 日式餐廳 西式餐廳 餐廳配置圖 商業餐廳 廚房配置 |
|
|
|
★豪宅餐廳設計Autocad模板 餐廳設計圖 日式餐廳 西式餐廳 餐廳配置圖 商業餐廳 廚房配置 |
|
|
|
★建築圖庫 | AutoCAD室內設計圖庫 | 台灣建築 |建築公會標準圖庫│建築系 建築技術規則│建築世界 建築結構 ★t- |
![]() |
|
【建築工程AutoCAD製圖王】專業AutoCAD建築工程 AutoCAD施工圖庫 AutoCAD圖塊 AutoCAD剖立面圖 Copyright@All Rights Reserved |